For Sale

831 Cerise Rd

28369

Property ID

21,932 sf

Size

PRICE REDUCED - $2,490,000.00

Description

  • 21,932 SF Shop/Warehouse Property for Sale
  • PRICE REDUCED $2,490,000
  • 5.08 Acres of Land
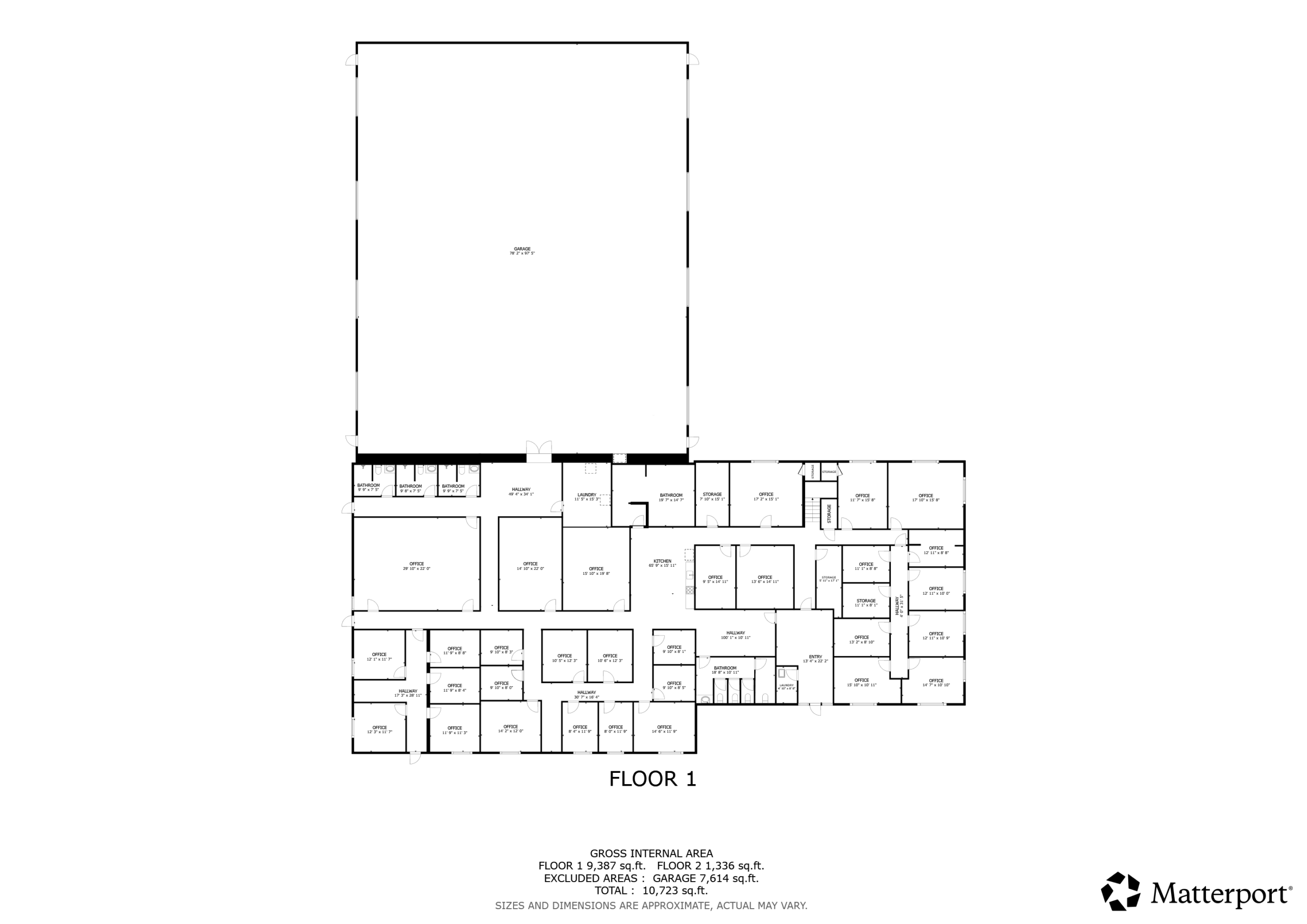
  • 10,732 SF of Total Office
  • 21 Private Offices, 2 Conference Rooms, Truck Driver’s Lounge, 6 Bathrooms, Kitchenette, Multiple Storage Rooms & Reception Area
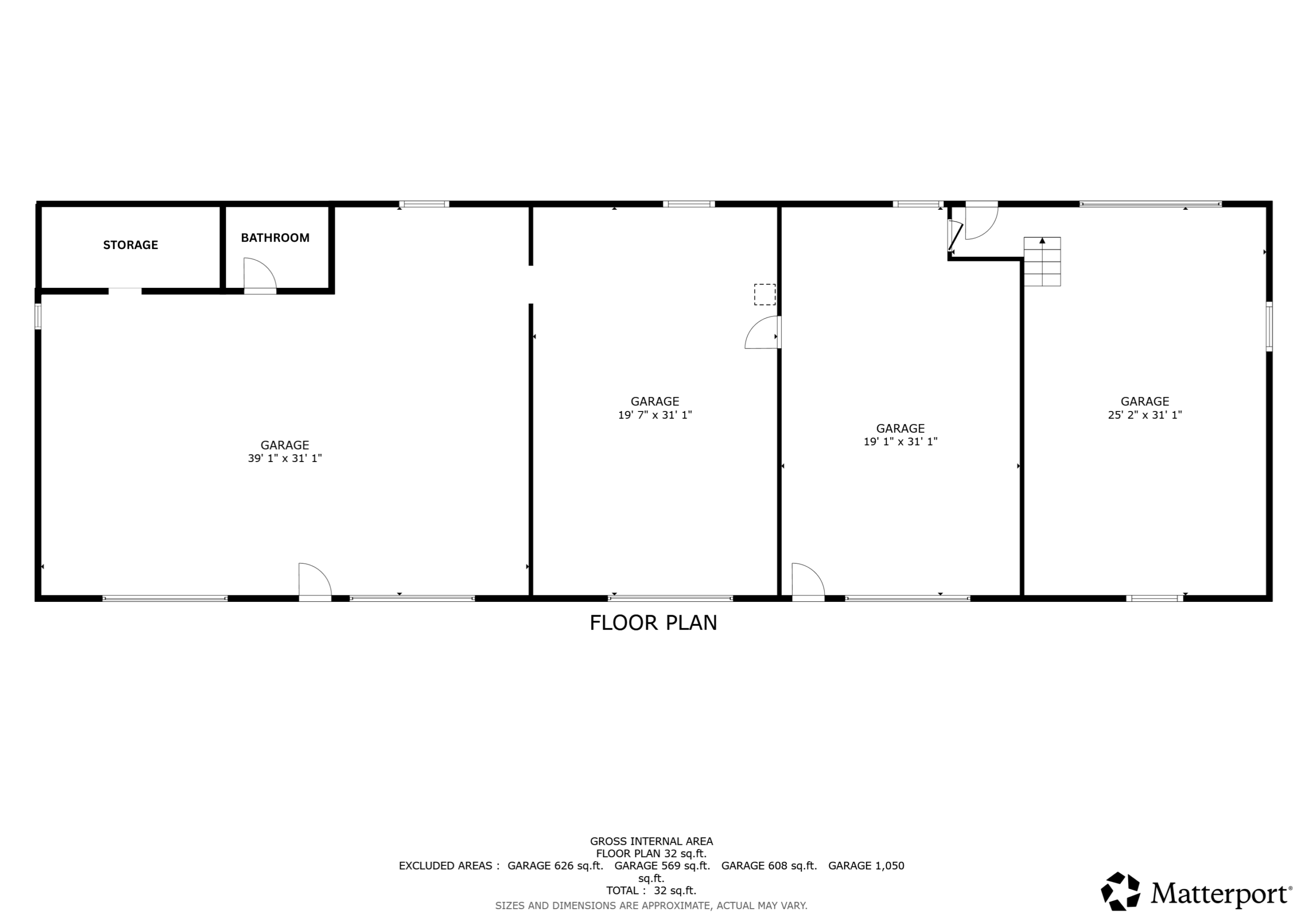
  • 11,200 SF of Total Shop/Warehouse
  • 8,000 SF Shop Consists of 4 Drive Through Bays with 14 ft Overhead Doors
  • 3,200 SF Warehouse Consists of 4 qty 10 ft Overhead Doors with Loading Dock
  • Built 1977, Remodeled 2025
  • Lockwood Water & Sewer
  • Fiber Internet
  • Property is Paved and Fenced
  • Zoned Light Industrial
  • Easy Access to Interstate (I-90) Located Less Than 1 Mile Away

NOTE: Seller is Willing to Lease Back a Portion of the Office Space

 

If your trucking & logistics company is looking for shop/warehouse space with high clearance bays, drive through access and large 14 ft overhead doors, 831 Cerise Rd could be a great option for you.  Boasting a newly renovated office perfect for dispatch, administration and driver amenities, no detail has been neglected.  Semi-truck drivers love the easy circulation, fully paved parking lot, trailer storage, fleet parking and easy access to I-90.  Looking for extra warehousing & storage?  The detached 3,200 SF shop is perfect for parts & equipment storage coming complete with a loading dock off the back.  This property could also be a great fit for RV dealers, trailer sales, construction equipment rental, heavy equipment sales/service, car sales, motorsports sales/service or any business that would benefit from a large shop with newly remodel office on 5 acres of fenced parking lot.

Address

  • Address 831 Cerise Rd, Billings
  • Country United States
  • Province/State
  • City/Town
  • Postal code/ZIP 59101
Open on Google Maps

Overview

  • Property ID 28369
  • Price PRICE REDUCED - $2,490,000.00
  • Property Type , ,
  • Property status
  • Year Built 1977
  • Size 21,932 sf
  • Land area 5.08 ac
  • Zoned l1- Light Industrial

Virtual tour

File Attachments

Brochure-831-Cerise-Rd-PR-Jan-2026.pdf
Brochure-831-Cerise-Rd-PR-Jan-2026.pdf
Download

Get Directions

Contact

Nathan Matelich, CCIM

Property Agent
(406) 781-6889
nathan@cbcmontana.com
Other Properties