For Lease

6765 Trade Center Ave

29606

Property ID

12,500 sf

Size

$8.50 / sf NNN

Description

6765 Trade Center Drive – Billings, Montana
For Lease | $8.50 PSF NNN

 

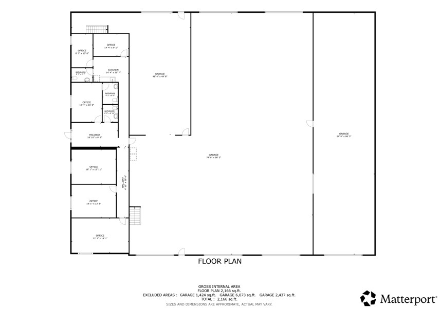
Excellent opportunity to lease a high-quality industrial property in one of Billings’ most accessible commercial corridors. 6765 Trade Center Drive features a 12,500 SF building situated on a 2.89-acre tract, offering ample building functionality with additional yard and circulation area.

 

The property includes multiple drive-through bays, allowing efficient vehicle and equipment movement, along with a well-designed office buildout featuring six private offices and a dedicated break room. The shop area is equipped with radiant heat, providing consistent comfort and energy efficiency throughout the year. The building is in excellent condition and well-suited for immediate occupancy.

 

Located just minutes from Interstate 90, the site provides easy access to all parts of Billings, making it an ideal location for service, light manufacturing, or distribution users serving the greater market.

 

• Lease Rate: $8.50 PSF NNN
• Building Size: 12,500 SF
• Site Size: 2.89 acres
• Multiple drive-through bays
• Six private offices + break room
• Radiant heat in shop area
• Excellent condition
• Convenient access to I-90 and major Billings arterials

Address

Overview

  • Property ID 29606
  • Price $8.50 / sf NNN
  • Property Type
  • Property status
  • Size 12,500 sf
  • Lot Size 2.89 AC

Video

Virtual tour

File Attachments

6567-Trade-Center-Ave-Brochure.pdf
6567-Trade-Center-Ave-Brochure.pdf
Download

Get Directions

Contact

406-570-8961 | 406-855-8946
info@cbcmontana.com
Other Properties