For Sale

2520 5th Ave S

29293

Property ID

20,648 sf

Size

$2,100,000.00

Description

Investment or Owner-User Opportunity | Turnkey Multi-Use Facility on 1.93 Acres

 

Offered for sale at $2,100,000, this exceptionally maintained and highly flexible commercial building presents a rare opportunity for an owner-user or investor seeking a turnkey asset with immediate functionality.

 

Situated on a 1.93-acre lot with abundant on-site parking, the property is currently configured for multi-tenant occupancy, yet its thoughtful layout allows for single-user occupation or continued multi-tenant operations without major reconfiguration.

 

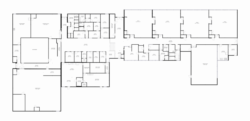
 The building features 19 private offices of varying sizes, multiple conference rooms, restrooms, large assembly areas, and fully equipped kitchens, creating a dynamic environment that supports both focused work and collaborative team use. Interconnecting office layouts provide privacy where needed, while still allowing departments or teams to integrate seamlessly for meetings, training, or group functions.

 

The space benefits from excellent natural and interior lighting, a clean, modern finish, and a flexible floorplan that can easily adapt to a wide range of business operations. The property is ADA accessible, featuring ramps and a built-in wheelchair lift, ensuring compliance and ease of access for employees and visitors alike.

 

 With its turnkey condition, generous parking capacity, and scalable interior layout, the building is ready for immediate occupancy with minimal capital investment.

 

 Ideal Uses Include (but are not limited to):

  • Corporate or regional headquarters
  • Professional services (law, accounting, engineering, consulting)
  • Educational, training, or vocational facilities
  • Faith-based or nonprofit organizations
  • Call centers or administrative hubs
  • Tech, design, or creative office environments
  • Co-working or shared office concepts

 

Occupy the entire building for a single operation or continue operating as a multi-tenant investment, leveraging the existing layout to support diversified income streams.

 

Zoned: P2 – Public, Civic and Institutions

Address

Overview

  • Property ID 29293
  • Price $2,100,000.00
  • Property Type
  • Property status
  • Size 20,648 sf
  • Lot Size 1.93 AC

Virtual tour

File Attachments

2520-5th-Ave-S-Brochure.pdf
2520-5th-Ave-S-Brochure.pdf
Download

Get Directions

Contact

Erik Caseres

Property Agent
406-861-4742
erik@cbcmontana.com
Other Properties